Ankündigung

Einklappen
Keine Ankündigung bisher.

Altas DSM mit 2x TIW 300

Einklappen
X
 
  • Filter
  • Zeit
  • Anzeigen
Alles löschen
neue Beiträge
  • DanielK78
    Registrierter Benutzer
    • 11.03.2021
    • 524

    #16
    Vielen Dank Ubix für deine Input!
    So läuft sie ja auf voller Leistung

    Bei 600Hz hat sie einen Abfall im Max linearen Pegel auf 109db ist aber darüber besser.
    Hab nochmal meine aktuelle und Ubix seine Variante im Anhang mit 5cm Fase beim DSM50 (wegen der Optik, steht aber noch zur Debatte)
    Angehängte Dateien

    Kommentar

    • DanielK78
      Registrierter Benutzer
      • 11.03.2021
      • 524

      #17
      Hat hier jemand Erfahrung wie die klanglichen Unterschiede der DSM50/25FFL zur G50/25FFL sind?

      Haben uns diese mal als Alternative angeschaut und simuliert.

      Prinzipiell sind wir beide klanglich von der DSM50 überzeugt. Die G50 wäre aber auch mal eine Abwechslung und die Lautsprecher würden sich stärker von der Atlas Mk3 abheben. Durch die runde Form sehen sie auch stimmig aus. Besonders die G25 FFL ist optisch gefälliger.

      Kommentar

      • DanielK78
        Registrierter Benutzer
        • 11.03.2021
        • 524

        #18
        Ich hoffe ich nerve niemanden mit dem Projekt.

        So also jetzt sieht es wieder etwas anderst aus
        Neue Auslegung ist nun 2*TIW300-Al200 etwas höher laufend-G50FFL und Hochtöner KE25
        Mein Bruder hat ja auch die KE25 aus der Concorde. Das ist natürlich irgendwie Perlen vor die Säue, aber trotzdem billiger als zwei Hochtöner G25FFL neukaufen.
        Einzig uns würde dann die Concorde MK3 als Vergleich fehlen.
        Haltet ihr es für klanglich vorteilhaft mehr Wirkungsgrad rauszuholen wie es Ubix gezeigt hat? Mit meiner Auslegung ist im Bass noch etwas Luft zur künstlichen Anhebung.

        Ke25 und G25FFL haben fast das gleiche Einbaumaß und könnten später wieder getauscht werden.

        4-Wege 2xTIW300 Al200 G50FFL Ke25 1650x40x50 Tuning1.BPJ

        Klicke auf die Grafik für eine vergrößerte Ansicht  Name: Frequenzweiche Al200+G50+KE25.jpg Ansichten: 0 Größe: 135,6 KB ID: 709703 Klicke auf die Grafik für eine vergrößerte Ansicht  Name: FG 10,0mH 136uF Al200+G50+KE25.jpg Ansichten: 0 Größe: 479,9 KB ID: 709704

        Edit:
        Der G20SC wäre ja auch noch eine Alternative. Die Simulation sieht ganz gut aus. G20 ohne Wiederstände und den G50 etwas höher laufen lassen.
        Mein Bruder hat aber schon passend für G25FFL/KE25 gefräst. Etwas auffüllen geht aber ja immer
        Angehängte Dateien
        Zuletzt geändert von DanielK78; 12.03.2023, 23:55.

        Kommentar

        • DanielK78
          Registrierter Benutzer
          • 11.03.2021
          • 524

          #19
          Hallo,
          Ich will ja im Bass schaltbar 2 Spulen einsetzen für verschiedene Setups. Kann ich diese Spulen direkt nebeneinander platzieren? Es wäre ja immer nur eine unter Strom.

          Klicke auf die Grafik für eine vergrößerte Ansicht  Name: 20230320_210114.jpg Ansichten: 0 Größe: 196,6 KB ID: 709876

          Dann hab ich derzeit vor die Weichenteile ohne Löten mit großen Lüsterklemmen zu verbinden. Spricht da etwas technisch dagegen? Ich werde jeweils zur Kontaktverbesserung immer ein abisoliertes 1.5er Litzen Kabel mit einbauen. Die Lüsterklemmen könnte man auch auf das Basisbrett schrauben
          Habt ihr noch Tips bezüglich der Spulenmontage? Würde die gern auf ein dünnes MDF-Brett schrauben...
          Große Elkos dann mit Kabelbinder oder "fliegend".
          ​​​​
          ​Die Weichen kommen dann außen auf die Rückwand in einen Kasten.
          An dem Lautsprecher sollen Modifikationen leicht möglich sein.
          Deshalb auch das Mitteltongehäuse separat zum Bass.
          Man könnte auf der 2xTiw Basis dann später auch ohne große Investitionen verschiedene Varianten im Mittelton testen. Zum Beispiel k25, Ti100, Al200 oder klassisch Atlas DSM
          Das Mitteltongehäuse ist praktisch eine integrierter Kompaktlautsprecher mit 51x40x20.

          ​​​​​​

          Kommentar

          • yoogie
            Registrierter Benutzer
            • 16.03.2009
            • 5972

            #20
            Die beiden LR Spulen solltest Du weiter auseinander setzen. Ich habe das schon selber mit LCR Messgeräten gemessen, alleine die Masse der Kernspule erhöht den Induktionswert. Besonders wenn die gestapelt sind. 10 cm oder mehr wäre gut. Zum verdrahten würde ich Dir gerne Wago Klemmen empfehlen, die sind super dafür.
            Viele Grüße aus dem Bergischen Land
            Jörg

            Ab jetzt auch wieder Yamaha, ohne Kickstarter und breitem Lenker

            Kommentar

            • mechanic
              Registrierter Benutzer
              • 25.07.2014
              • 2467

              #21
              Schalter ist gerade im Bassbereich nicht so toll (viel Strom & Übergangswiderstand).
              Ich nehme da ein grosses Leerterminal von Pollin, wo neben Polklemmen drei Bananenbuchsen reinkommen, jeweils an die Spule und eine zur Restweiche, und umgestöpselt wird mit einem kurzen Bananenkabel. So stöpsle ich auch zwischen Pentaton und Pentaton plus um ...
              Gruß Klaus

              Kommentar

              • DanielK78
                Registrierter Benutzer
                • 11.03.2021
                • 524

                #22
                OK dann werde ich mal die Spulen mit Distanz aufbauen. Die Waco habe ich mir wegen der Klemmfunktion auch angesehen. Ich hab aber keine zum aufschrauben gefunden.
                Die klassische Lüsterklemme kann ich auf das Weichenbrett montieren.

                Also die "Schaltung" soll ja über die Lautsprecherklemmen auf dem Bild oben auf der Außenseite des Kastens geschehen Also ein Lautsprecherkabel als Brücke.


                Ein Mitteltongehäuse ist schon fertig gebastelt. Der Herr hat auf einmal nur sehr konservativ gebaut...
                auf den Deckel kommt oben und unten noch ein 1cm MDF das als Füller und Nut dient da es 1cm kleiner als der Deckel ist.
                Dann hat das Gehäuse 53x40x20

                Klicke auf die Grafik für eine vergrößerte Ansicht  Name: 20230321_092548.jpg Ansichten: 0 Größe: 881,9 KB ID: 709882

                Edit:
                Habt ihr eine Lösung mit den Spulen aufschrauben? Plastikspax gibts ja wohl nicht

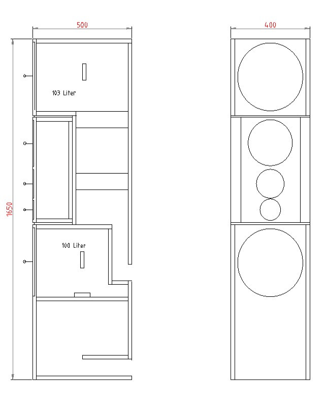
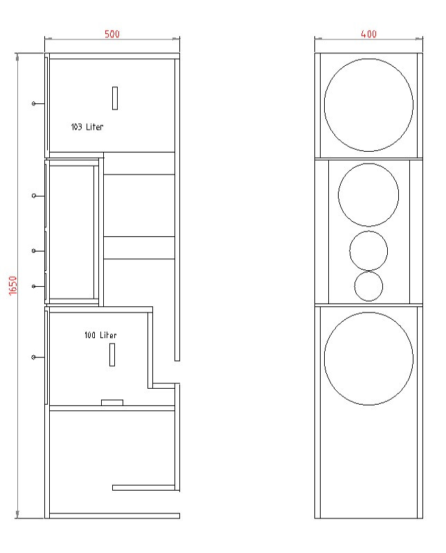
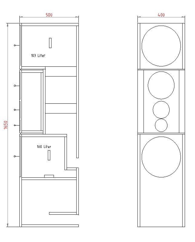
                Hier noch der Vorläufige Entwurf des Gehäuses:
                Klicke auf die Grafik für eine vergrößerte Ansicht

Name: Zeichnung 1.jpg
Ansichten: 564
Größe: 49,7 KB
ID: 709886
                Angehängte Dateien
                Zuletzt geändert von DanielK78; 21.03.2023, 10:16.

                Kommentar

                • mechanic
                  Registrierter Benutzer
                  • 25.07.2014
                  • 2467

                  #23
                  Zitat von DanielK78 Beitrag anzeigen

                  Edit:
                  Habt ihr eine Lösung mit den Spulen aufschrauben? Plastikspax gibts ja wohl nicht
                  Messingschraube
                  Gruß Klaus

                  Kommentar

                  • DanielK78
                    Registrierter Benutzer
                    • 11.03.2021
                    • 524

                    #24
                    Das Projekt lebt noch und kann wenigstens bald im Mittelton getestet werden.

                    Die Weiche sieht etwas unprofessionell aus. Aber ich will das diese leicht umzubauen ist.
                    Diese kommt später außen auf die Oberseite und wird mit einem abnehmbaren Häubchen verdeckt

                    Durch die getrennte Bass- und Mitteltoneinheit sind auch komplett andere Konfigurationen möglich.

                    Ein Projekt unter dem Motto:
                    Ich glaube an Gott und vertraue auf Boxsim

                    Klicke auf die Grafik für eine vergrößerte Ansicht  Name: 20230818_102349.jpg Ansichten: 0 Größe: 2,11 MB ID: 713108

                    Klicke auf die Grafik für eine vergrößerte Ansicht  Name: 20230818_102620.jpg Ansichten: 0 Größe: 966,6 KB ID: 713109 Klicke auf die Grafik für eine vergrößerte Ansicht  Name: 20230818_102546.jpg Ansichten: 0 Größe: 1,30 MB ID: 713110

                    Kommentar

                    • DanielK78
                      Registrierter Benutzer
                      • 11.03.2021
                      • 524

                      #25
                      Hallo,

                      ich habe gestern so gut es mir auf die schnelle möglich war, einen kleinen Messaufbau in meiner Wohnung gemacht.
                      Hatte dort eigentlich das besste Umfeld, hab ich auch einige Akustische Maßnahmen wie ein Deckensegel ect.
                      Auf dem Balkon hab ich festgestellt wie stark der Bach rauscht...

                      Bin soweit ich das beurteilen kann ganz zufrieden! Ist doch sehr nah an der Simulation. Wir haben sie auch schon etwas probegehört und sie Klang unserer Meinung nach besser als die Atlas DSM meines Bruders (klare,differenzierter und feiner) (mit aufgetrennter Bassbrücke )
                      Bei der Atlas sind allerdings noch die alten DSM ohne die neuen Sicke verbaut. Sollte man denke ich mal wechseln weil die schon sehr alt sind.


                      Ich hab mich an einer übereinander gelegten Gif versucht.
                      Simulation vs Einzeln gemessene Chassis mit REW
                      Hoffe das klappt:

                      Klicke auf die Grafik für eine vergrößerte Ansicht  Name: Phönix-Mitteltonlautsprecher-Boxsim-vs-Messung.gif Ansichten: 0 Größe: 371,6 KB ID: 713142


                      Dann einmal unter Winkel 0-90 Grad / Simulation ohne Bass / Einzelchassimessung mit separat aufgetrennten Wegen an der Weiche

                      Klicke auf die Grafik für eine vergrößerte Ansicht  Name: Komplett Hoch-Mitteltonlautsprecher 0-90 Grad.jpg Ansichten: 0 Größe: 343,2 KB ID: 713143 Klicke auf die Grafik für eine vergrößerte Ansicht  Name: Phönix Mitteltonlautsprecher ohne Bass Boxsim.jpg Ansichten: 0 Größe: 459,2 KB ID: 713141 Klicke auf die Grafik für eine vergrößerte Ansicht  Name: Einzelchassis Messung Phönix Wohnung Daniel.jpg Ansichten: 0 Größe: 359,1 KB ID: 713140

                      Klicke auf die Grafik für eine vergrößerte Ansicht  Name: Einzelchassis Messung Phönix Wohnung Daniel.jpg Ansichten: 0 Größe: 359,1 KB ID: 713144 Klicke auf die Grafik für eine vergrößerte Ansicht  Name: Komplett Hoch-Mitteltonlautsprecher 0-90 Grad.jpg Ansichten: 0 Größe: 343,2 KB ID: 713145 Klicke auf die Grafik für eine vergrößerte Ansicht  Name: Phönix-Mitteltonlautsprecher-Boxsim-vs-Messung.gif Ansichten: 0 Größe: 371,6 KB ID: 713146 Klicke auf die Grafik für eine vergrößerte Ansicht  Name: Phönix Mitteltonlautsprecher ohne Bass Boxsim.jpg Ansichten: 0 Größe: 459,2 KB ID: 713148
                      Angehängte Dateien
                      Zuletzt geändert von DanielK78; 20.08.2023, 12:25.

                      Kommentar

                      • Azrael
                        Registrierter Benutzer
                        • 16.07.2004
                        • 491

                        #26
                        Zitat von DanielK78 Beitrag anzeigen
                        Die MK3 ist brutal und trocken. Man muss die Rückseite aufmachen und auf Höhe des DSM50 ein Brett mit dem Ausschnitt für den TIW250 einbauen. 4,7mH LR-Spule dran und die Bassreflexrohre neu anpassen. Fertig ist der Kindermörder
                        Wenn ich mir diese Zeichnung des Aufbaus der Atlas DSM MK III ....:

                        Klicke auf die Grafik für eine vergrößerte Ansicht  Name: atlasdsmmkiii_ex.jpg?itok=aWGOnVj4.jpg Ansichten: 0 Größe: 31,2 KB ID: 713162

                        .....ansehe, dann sieht das ein bisschen wie eine Compound-Konstruktion mit großer Koppelkammer aus, wobei ich das noch nie mit zwei unterschiedlichen großen Basstreibern gesehen habe.

                        Mich würde mal interessieren, wie sich der innenliegende TIW250 hubmäßig verhält, wenn der außenliegende TIW400 richtig loslegt und sein Hubmaximum erreicht. Ich würde mir um den TIW250 jedenfalls gewisse Sorgen machen.

                        Weiß da jemand Genaueres?

                        Zitat von DanielK78 Beitrag anzeigen
                        Dann hab ich derzeit vor die Weichenteile ohne Löten mit großen Lüsterklemmen zu verbinden. Spricht da etwas technisch dagegen? Ich werde jeweils zur Kontaktverbesserung immer ein abisoliertes 1.5er Litzen Kabel mit einbauen. Die Lüsterklemmen könnte man auch auf das Basisbrett schrauben​​​​​​
                        Ich würde keine Lüsterklemmen nehmen, langzeitstabiler und v.a. auch einfacher handhabbar sind WAGO-Klemmen. Ich meine sogar mal gehört zu haben, dass in Hauselektrikinstallationen Lüsterklemmen nicht mehr verwendet werden dürfen, statt dessen eben sowas wie die WAGO-Klemmen. Bin allerdigs kein Elektriker

                        Ich habe die Klemmen mit 2K-Kleber am FW-Brettchen festgeklebt: hält bombig.

                        Viele Grüße,
                        Michael
                        Zuletzt geändert von Azrael; 21.08.2023, 12:18.

                        Kommentar

                        • DanielK78
                          Registrierter Benutzer
                          • 11.03.2021
                          • 524

                          #27
                          Kann dazu auch nicht viel sagen... Der TIW wirkt als Bandpass auf die unteren 120L bei ~35hz. Gleichzeitig fungiert er wie ein aktiv Membran für den TIW400?
                          Vor längerer Zeit hab ich von Friedemann dem Konstrukteur gelesen das Visaton auch bedenken hatte das der 25er abraucht. Ist aber nur aus dem Gedächnis geschrieben. Habe den Thread nicht wiedergefunden. Aber scheint ja über Jahrzehnte zu funktionieren
                          Zitat von der Atlas MKII Broschüre:

                          "Bei dem Gehäuse der ATLAS liegt die bei 90hz(stehende Welle).
                          Da mit Dämpfungsmaterial alleine diese Resonanz nicht völlig unterdrückt werden (sehr untertrieben die alte Atlas hat ein mächtiges Bassproblem ) kann, wird innen auf halber Höhe der TIW250 eingesetzt. Dieser Treiber wirkt im Frequenzbereich der Resonanz als Unterteilung, so dass sich die stehende Welle nicht mehr ausbilden kann. Ganz tiefe Frequenzen werden jedoch von dem mit einem 6dB Filter angesteuerten Tieftöner ungehindert durchgelassen
                          Das Ergebnis ist eine Lautsprecherkonstruktion, die selbst unglaublich kräftige Pegel abstrahlen kann"


                          Zitat von Azrael Beitrag anzeigen
                          Ich würde keine Lüsterklemmen nehmen, langzeitstabiler und v.a. auch einfacher handhabbar sind WAGO-Klemmen. Ich meine sogar mal gehört zu haben, dass in Hauselektrikinstallationen Lüsterklemmen nicht mehr verwendet werden dürfen, statt dessen eben sowas wie die WAGO-Klemmen. Bin allerdigs kein Elektriker

                          Ich habe die Klemmen mit 2K-Kleber am FW-Brettchen festgeklebt: hält bombig.

                          Viele Grüße,
                          Michael
                          Ja die Klemmen sind sicher nicht optimal. Ich habe aber immer zusätzlich ein abisoliertes 1,5mm² Lautsprecherkabel mit durchgeführt damit es sicheren Kontakt hat.
                          Im Moment muss ich ja oft wieder auftrennen und wenn sie mit dem Bass verheiratet, wird eventuell nochmal nachkorrigieren.
                          Hab ja so auch die 3-Wege getrennt gemessen.
                          Wenn später alles funktioniert muss ich da auf jedenfalls noch optimieren!

                          Gedacht ist auch später die Weiche leicht editierbar zu halten. Wenn das Bassabteil gut funktioniert, könnte man den Mittelton ja austauschen gegen andere Konfigurationen ( Spaß and der Freude ). Im schlimmstenfalls müssen wir den Bass aktiv betreiben. Da kann ich mich dann auch noch reinfuchsen

                          Denke ich habe einen guten Platz für Tests gefunden. Und zwar den unisolierten Dachboden!
                          Da gibt es kaum Bassprobleme und viel Raum. Werde eventuell dann noch später die Erstreflektionen dämmen, dann müsste das sehr gut sein. Werde da oben auch mal Canton und Concorde piepsen lassen.

                          Hier mal neue Messungen:

                          Gesamtfrequenz und einzelne Chassis / unter Winkel

                          Klicke auf die Grafik für eine vergrößerte Ansicht  Name: Dachstuhl Phönix 100db Gesamt und Enzelchassis.jpg Ansichten: 0 Größe: 283,7 KB ID: 713179 Klicke auf die Grafik für eine vergrößerte Ansicht  Name: Dachstuhl Phönix 100db Abstrahlverhalten 0-85grad.jpg Ansichten: 0 Größe: 307,2 KB ID: 713177

                          Verzerrung:

                          Klicke auf die Grafik für eine vergrößerte Ansicht  Name: Dachstuhl Phönix 100db Verzerrung.jpg Ansichten: 0 Größe: 297,6 KB ID: 713178

                          Bei 500 hz sieht mir das etwas komisch aus?
                          Links mit normaler Dämmung und rechts mit viel Steinwolle

                          Klicke auf die Grafik für eine vergrößerte Ansicht  Name: Dachstuhl Phönix 100db Verzerrung AL200.jpg Ansichten: 0 Größe: 291,4 KB ID: 713181 Klicke auf die Grafik für eine vergrößerte Ansicht  Name: Dachstuhl Phönix 100db Verzerrung AL200 stark gedämmt.jpg Ansichten: 0 Größe: 278,2 KB ID: 713182



                          Wenn der Bass dann hinzukommt wird es nochmal spannend!
                          Zuletzt geändert von DanielK78; 23.08.2023, 22:09.

                          Kommentar

                          • DanielK78
                            Registrierter Benutzer
                            • 11.03.2021
                            • 524

                            #28
                            So nochmal einige:

                            Impuls / Step Response

                            Klicke auf die Grafik für eine vergrößerte Ansicht  Name: Dachstuhl Phönix 100db Impulse.jpg Ansichten: 0 Größe: 251,0 KB ID: 713185 Klicke auf die Grafik für eine vergrößerte Ansicht  Name: Dachstuhl Phönix 100db Step Response.jpg Ansichten: 0 Größe: 259,6 KB ID: 713184
                            Gruppenlaufzeit (kann das mein UMIK-1 überhaupt?)
                            Klicke auf die Grafik für eine vergrößerte Ansicht  Name: Dachstuhl Phönix 100db Gruppenlaufzeit.jpg Ansichten: 0 Größe: 296,3 KB ID: 713186

                            Nochmal Verzerrung bei 110dB:

                            Klicke auf die Grafik für eine vergrößerte Ansicht

Name: Verzerrung avg 110DB in %.jpg
Ansichten: 563
Größe: 198,2 KB
ID: 713188
                            Angehängte Dateien
                            Zuletzt geändert von DanielK78; 23.08.2023, 15:39.

                            Kommentar

                            • JAL
                              JAL
                              Registrierter Benutzer
                              • 26.03.2018
                              • 1033

                              #29
                              Hey,

                              ich will hier nur kurz einwerfen, daß ich es toll finde, daß es mal wieder jemanden gibt, der die Atlas Full-Size angeht
                              (ich habe deinen Thread über Monate übersehen :-/),
                              wobei mir die Wahl des G50 persönlich (allein schon optisch) sehr gut gefällt und die ich sehr interessant finde.

                              Bin gespannt was du in Zukunft noch berichten kannst, ich werde mitlesen.

                              Gruß,

                              ein Schwenninger

                              Kommentar

                              • Markus213
                                Registrierter Benutzer
                                • 11.03.2017
                                • 886

                                #30
                                Ich persönlich mag harte Membranen und würde auch den MT als Ti Membran ausprobieren. Vielleicht kann man nur die Membran als Ersatzteil auswechseln. Bei Audax HT geht das wie Lego Bausteine. Natürlich der AL 130 wäre das HiEnd aber da müsste man bisschen an den Trennfrequenzen arbeiten.
                                Es ist meine Meinung, die ohne Angaben von Gründen geändert werden kann. Fehler oder Irrtümer vorbehalten! Für die Richtigkeit der Angaben kann keine Gewähr übernommen werden

                                Kommentar

                                Lädt...
                                X