Ankündigung

Einklappen
Keine Ankündigung bisher.

STELLA light

Einklappen
X
 
  • Filter
  • Zeit
  • Anzeigen
Alles löschen
neue Beiträge
  • S. Brandt
    Registrierter Benutzer
    • 12.05.2003
    • 150

    Welchen Vorteil hat eigentlich das sehr flache Gehäuse für den FRS8 in der Stella light?
    Aus dem Bauch heraus hätte ich ein eher tiefes Mittelhochtongehäuse gewählt
    um Rückwandreflexionen mittels Watte besser besser in den Griff zu bekommen.
    Oder sogar ein einfaches schräges Brett für ein tiefes Gehäuse mit nichtparallelen Wänden.
    Vom Arbeitsaufwand dürfte sich auch nichts groß ändern.
    Gruß
    Steffen
    Grüße
    Steffen

    Kommentar

    • bili
      Registrierter Benutzer
      • 04.01.2005
      • 1019

      Naja das Volumen des W170S liegt genau dahinter oder?
      Viele Grüße,
      Sebastian


      Onkyo TX9031RDS + Onkyo DX7355 + Dual CS 704 (mein Schätzchen ) + VIB Micro SE

      Kommentar

      • Gast-Avatar
        zxl

        Hi,

        eine Schräge wäre durchaus denkbar gewesen, jedoch wollte ich den Aufbau so einfach wie nur möglich machen.
        Eine tiefere Ausführung dieses Innengehäuses wäre dem seitlich eingebautem W 170 S in die Quere gekommen. Daher die flache Variante.

        Gruß
        Sebastian

        Kommentar

        • Volker
          Registrierter Benutzer
          • 24.12.2000
          • 2002

          Hallo,
          ich hab die Stella jetzt mit dem AL 170 aufgebaut, aber 1m hoch und das MT- Gehäuse für den FRS 8 durch ein schräges, - spitz zulaufendes Brett verändert. Hinzu kommt noch, das ich zum vergleichen mal den AL 170 nahe am Boden und das Reflexrohr oben plaziert kann.
          Die Stelle gefällt so gut, dat sich zwei Bekannte die, die Stella ausgiebig hörten in org.aufbauen werden. Eine andere dritte Person wird nochmals in abgeänderte Version (20er TT- FRS8 M) alles aufbauen.

          Klanglich hört man im oberen Hochtonbereich, das der FRS 8 etwas zisselt, aber die Tiefenstaffelung sowie Spielfreude ist für den Bausatzpreis über alle Erwartung. Wenn eine org. Stella fertig ist, werden wir die LS dann direkt vergleichen können und natürlich dat Hörempfinden hier berichten.
          Gruß, Volker

          Kommentar

          • jama
            Registrierter Benutzer
            • 19.07.2009
            • 4888

            vergleich stella - fast

            hallo an alle
            zur zeit als lebrichon seine stella entwickelte hatte ich in meiner ecke meine fast mit den selben chassis entworfen...
            es handelt sich um eine konventionele box eher "old-schuhl":
            -keine seiten bass
            -keine smale wand
            -keine serien weiche sonder eine 12db parallel weiche.
            hier könnt ihr den vergleich anschauen:
            gestrichelt ist die stella.
            die fgangrichtung vertikal ist auch sehr gut.
            ich werde in den nächten tagen (sobald ich zeit habe,werde ich sie in einem neuen thema veröffentlichen)
            bis dann gruss an alle.
            jama
            das ist KEINE kritik zur stella sondern ein "änlichanders" konzept
            gruss an dich sebastian
            Angehängte Dateien
            Zuletzt geändert von jama; 10.10.2009, 13:54.
            • ’’Freiheit ist das Recht, anderen zu sagen, was sie nicht hören wollen. ‘‘ George Orwell
            • „Niemand ist frei, der nicht über sich selbst Herr ist. ‘‘ Matthias Claudius.

            deutsch ohne "sz" ABER mit fehler, tchüss! Jean-Marc.

            Kommentar

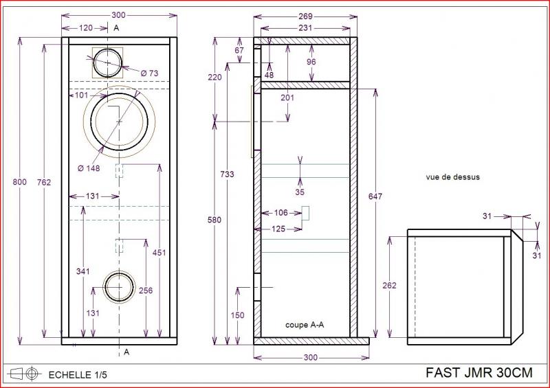
            • jama
              Registrierter Benutzer
              • 19.07.2009
              • 4888

              plan fast

              hier noch der plan
              vorne kommt eine 8mm dicke mediumplatte und der frs8 wird drauf gesetz...
              Angehängte Dateien
              • ’’Freiheit ist das Recht, anderen zu sagen, was sie nicht hören wollen. ‘‘ George Orwell
              • „Niemand ist frei, der nicht über sich selbst Herr ist. ‘‘ Matthias Claudius.

              deutsch ohne "sz" ABER mit fehler, tchüss! Jean-Marc.

              Kommentar

              • angelralle
                Registrierter Benutzer
                • 19.08.2003
                • 1959

                Die Stella light in der neuen Klang+Ton, Zitat T.Schmidt::

                "Von wegen 'light': 180Euro für zwei vor allem in Sachen Klang ausgewachsene Standboxen - besser geht's schon fast nicht mehr.
                Als Zugabe gibt es obendrauf noch eine ordentliche Portion Breitbänderfaszination - was will man mehr?"
                Ein Mann braucht eine Insel.

                Kommentar

                • VISATON
                  Administrator
                  • 30.09.2000
                  • 4537

                  Er ist ziemlich begeistert von der Stella light. Aber das Wort "Wahnsinn" hat er nicht benutzt.
                  Admin

                  Kommentar

                  • Quaschdl
                    Registrierter Benutzer
                    • 17.08.2004
                    • 454

                    Ich habe die Stella auch gebaut, nur etwas größer für etwas tieferen Bass.
                    Stimmt schon, tolles Teil für's Geld.

                    Aber in diesen Zeitschriften wird meiner Meinung nach immer alles in den Himmel gelobt. Wenn da ein 17er Tieftöner am werkeln ist, ist es immer "unglaublich, wieviel Luft der doch Bewegen kann" und "das hätte man diesen Winzlingen nicht zugetraut". Solche Floskeln begegnen einen immer bei kleinen Boxen, es gibt hier ja praktisch keine Kritik. Sei's drum, Stella ist echt ok.
                    To generalise is to be an idiot.

                    Kommentar

                    • angelralle
                      Registrierter Benutzer
                      • 19.08.2003
                      • 1959

                      Zitat von VISATON Beitrag anzeigen
                      Er ist ziemlich begeistert von der Stella light. Aber das Wort "Wahnsinn" hat er nicht benutzt.
                      Aber "light Bier".
                      Ein Mann braucht eine Insel.

                      Kommentar

                      • jesi1975
                        Registrierter Benutzer
                        • 19.04.2008
                        • 19

                        Beweichung für Miniausgabe

                        Hallo!
                        Wie sieht´s mit der Beweichung aus wenn ich die Stella mit einem W130s (ca 10l Bassreflex) bauen möchte????

                        Hab ein paar Seiten vorher gelesen das diese Beweichung mit einem w200s möglich ist; trifft das auch auf den 130er zu??

                        Für mich als Anfänger wäre das ein ideales und einfaches Konzept um an eine billige PC-; Wohn-; Schlafzimmerbeschallung zu kommen ohne ein großes technisches Verständniss zu haben

                        mfg jesi

                        Kommentar

                        • Kleinstweich
                          Registrierter Benutzer
                          • 18.05.2006
                          • 336

                          Ich baue genau das gerade zusammen. Höhe:32cm, Breite: 12cm, Tiefe: 24cm. Material ist 10mm MDF mit ein paar Versteifungen.
                          Die Weiche bleibt gleich. Der W130S (4) bekommt rund 5,5l geschlossen, der FRS8-4 bekommt 0,7l.

                          Für mein Büro wird diese kleine Box wohl reichen, da ist eh nicht allzu viel Pegel sinnvoll. Für´s Schlafzimmer sollte es auch gehen.
                          Wenn´s am Rücken juckt, solltest Du dir nicht die Füße kratzen.

                          Kommentar

                          • jesi1975
                            Registrierter Benutzer
                            • 19.04.2008
                            • 19

                            Hallo!
                            Danke für deine AW.
                            Ich möchte aber trotzdem Richung 10l Bassreflex gehen und den Bass eventuell sogar auf der Frontseite einbauen vorausgesetzt das es Sinn macht.
                            ( Schallwand würde deutlich breiter)

                            mfg jesi

                            Kommentar

                            • Grashopper
                              Registrierter Benutzer
                              • 22.01.2005
                              • 574

                              @VISATON: Kann es sein das es sich bei der Stella Bausatzbeschreibung ein Fehler eingeschlichen hat ?
                              Angehängte Dateien

                              Kommentar

                              • Philip
                                Registrierter Benutzer
                                • 11.08.2006
                                • 28

                                Stella Light

                                Hallo,

                                gibt es die Möglichkeit der Stella Light etwas mehr Tiefgang zu verpassen?

                                Gruß! Philip

                                Kommentar

                                Lädt...
                                X