Ankündigung

Einklappen
Keine Ankündigung bisher.

First Development version of Boxsim in english language

Einklappen
X
 
  • Filter
  • Zeit
  • Anzeigen
Alles löschen
neue Beiträge
  • UweG
    Registrierter Benutzer
    • 29.07.2003
    • 5683

    #31
    Hello mcl2k6,

    I do not have personal experience with the AL170.
    In general it is known that new drivers have stiffer suspensions compared to used ones and additionally Thiele/Small parameters depend on the voltage level where they are measured. If you measured with only some mV (e.g. without a power amp) you may get higher fs than at 1 Volt or even 2.83V.
    Nevertheless 56 Hz free air sounds much for me. Maybe you can ask the technical support: technik@visaton.com
    Boxsim ... wenn Lautsprechersimulation gelingen soll.

    Kommentar

    • mcl2k6
      Registrierter Benutzer
      • 26.11.2018
      • 19

      #32
      Zitat von UweG Beitrag anzeigen
      Hello mcl2k6,

      I do not have personal experience with the AL170.
      In general it is known that new drivers have stiffer suspensions compared to used ones and additionally Thiele/Small parameters depend on the voltage level where they are measured. If you measured with only some mV (e.g. without a power amp) you may get higher fs than at 1 Volt or even 2.83V.
      Nevertheless 56 Hz free air sounds much for me. Maybe you can ask the technical support: technik@visaton.com
      Thank you for the answer. Obviously here I was measuring the speaker using the headphone out from my soundcard - therefore using low power. I'll try to repeat with a power amp!

      Kommentar

      • Willy_65
        Registrierter Benutzer
        • 13.12.2018
        • 77

        #33
        Hello Uwe,
        Can you explain a bit how the results should be interpreted at the output of the Optimizer?
        Angehängte Dateien

        Kommentar

        • UweG
          Registrierter Benutzer
          • 29.07.2003
          • 5683

          #34
          Obviously the optimizer could do something positive at the beginning and then could not optimize significantly for a long time.
          The impedance response seems to be quite good according to the requirement. Frequency response is also very good, phase situation also very good. Efficiency could be better, maybe you do not need a box with PA like efficiecy and maximum power.
          Boxsim ... wenn Lautsprechersimulation gelingen soll.

          Kommentar

          • Willy_65
            Registrierter Benutzer
            • 13.12.2018
            • 77

            #35
            Port BR25.50 in Boxsim

            Hello Uwe
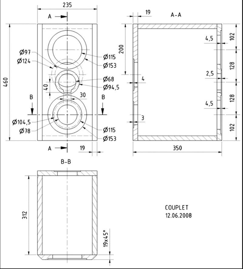
            I want to build the Couplet but first simulate it in Boxsim.
            I encountered a problem there, namely the port BR25.50 which is an angle reflex tube. Is it correct that I enter the distance to the top wall for entering the distance between the end of the tube and the opposite wall?

            See topic on forum.zelfbouwaudio.nl

            Thanks,
            Willy
            Zuletzt geändert von Willy_65; 01.09.2019, 07:21.

            Kommentar

            • Fraggle
              Registrierter Benutzer
              • 21.01.2018
              • 126

              #36
              I think it is corrct, because what matters is the position of the inner end of the tube relative to the walls.
              Consequently, the distance to the front and back walls should be entered as distance to the top and bottom walls.

              Kommentar

              • Willy_65
                Registrierter Benutzer
                • 13.12.2018
                • 77

                #37
                Zitat von Fraggle Beitrag anzeigen
                I think it is correct, because what matters is the position of the inner end of the tube relative to the walls.
                Consequently, the distance to the front and back walls should be entered as distance to the top and bottom walls.
                I do not understand the latter well, I think I only have to deal with top-wall when entering "Distance to opposite wall (g) [cm]".
                All the rest speaks for itself since there the position concerns the output of the port in the rear wall.

                See attachment with my input values for the port in box COUPLET.
                COUPLET construction plan also attached.
                Angehängte Dateien

                Kommentar

                • Fraggle
                  Registrierter Benutzer
                  • 21.01.2018
                  • 126

                  #38
                  Hello Willy,
                  I made a little sketch of my interpretation of the dimensions f, g, and k in this case.
                  If the inner end of the tube is close enough to a wall, the air flow is restricted to a smaller cross-section, which acts like as an extension of the tube length. Therefore it seems reasonable the dimensions I indicated should have an effect on the tuning frequency, although I don't know how the the tool works in detail. There is no such effect at the outer end of the tube.
                  Angehängte Dateien

                  Kommentar

                  • Willy_65
                    Registrierter Benutzer
                    • 13.12.2018
                    • 77

                    #39
                    Thanks Fraggle for de clear description.
                    Now I understand what you mean and I think you are right.
                    The exact location and size of the internal port determines the tuning frequency, I am convinced of that.
                    In this case, it is probably less important where the port's output is in the box and we should therefore only indicate that it is in the center of the panel. The other dimensions belong to the internal input of the port, but that is not really easy to enter in the tab of the port.

                    UweG (developer of the software) probably knows how to enter it correctly.

                    Update: I found another error when entering the geometric volume per AL130, I can only enter half of the total geometric volume there, so 13.1 instead of 26.1 ...

                    Moreover, I have found a tuning frequency of 45Hz in the official BPJ file of the COUPLET, perhaps I should also copy that myself.
                    Zuletzt geändert von Willy_65; 02.09.2019, 11:01.

                    Kommentar

                    • mcl2k6
                      Registrierter Benutzer
                      • 26.11.2018
                      • 19

                      #40
                      I would have a question: what does actually "Energy frequency response" mean on the FR graph on the main window?

                      Kommentar

                      • walwal
                        Registrierter Benutzer
                        • 08.01.2003
                        • 28707

                        #41
                        5. What is meant by energy frequency response?

                        The Energiefrequnzgang is the frequency response of the sound energy that radiates a box, regardless of the direction in which the sound is emitted.

                        Frequency responses usually refer to the sound a box radiates straight forward. Indeed, in a low-resonance ("dead room") room, one observes that speakers with similar frequency response in the main emission direction also sound similar when sitting in front of them. The same can be observed under free-field conditions. In a living room, however, one notes that speakers with the same frequency response on the axis sometimes produce a very different timbre. The reason for this is the indirect sound, that is, sound components that do not get straight from the speaker to the listener, but are partly reflected several times on the floor, ceiling, walls or pieces of furniture before they reach the ear of the listener. Obviously, this sound originally did not necessarily have to be emitted in the direction of the listener.

                        The energy frequency response provides a measure of how strongly the room is excited with diffuse sound components, which arrive as indirect sound at the listener. Especially with large hearing barriers and with reverberant rooms, it should be emphasized that the energy frequency response in the range above approx. 250 Hz is as straight as possible. The frequency response below about 250 Hz has little effect on the timbre, but is perceived separately as more or less bass.

                        http://www.boxsim.de/faq.html

                        Translatet by Google
                        „Audiophile verwenden ihre Geräte nicht, um Ihre Musik zu hören. Audiophile verwenden Ihre Musik, um ihre Geräte zu hören.“

                        Alan Parsons

                        Kommentar

                        • mcl2k6
                          Registrierter Benutzer
                          • 26.11.2018
                          • 19

                          #42
                          OK, thank you very much! It's clear now.

                          Kommentar

                          • UweG
                            Registrierter Benutzer
                            • 29.07.2003
                            • 5683

                            #43
                            Translatet by Google
                            As I read that I thought it was a joke, but in fact it isn't.

                            Let me try to improve the translation anyway:

                            The acoustic power response (so called in the english version of Boxsim) is the frequency response of the sound energy that is radiated by a box, regardless of the direction in which the sound is emitted.

                            Frequency responses usually refer to the sound a box radiates straight forward. Indeed, in a low-resonance room (anechoic chamber), one observes that speakers with similar frequency response in the main emission direction also sound similar when sitting in front of them. The same can be observed under free-field conditions. In a living room, however, one notes that speakers with the same frequency response on the axis sometimes produce a very different sound color. The reason for this is the indirect sound. That means sound components that do not get straight from the speaker to the listener, but are partly reflected several times on the floor, ceiling, walls or pieces of furniture before they reach the ear of the listener. Obviously, this sound originally did not necessarily have to be emitted in the direction of the listener.

                            The sound power response provides a measure of how strongly the room is excited with diffuse sound components, which arrive as indirect sound at the listener. Especially if listened in a large distance and/or in a heavy reverberant room, it should be emphasized that the sound power frequency response in the range above approx. 250 Hz should be as flat as possible. The frequency response below about 250 Hz has little effect on the timbre, but is perceived separately as more or less bass.

                            In the german version I avoided to use the word Schalleistungsfrequenzgang (word by word translated: sound power response), because this is a word used in the german standard DIN EN ISO 3740, but with different meaning. In the standard 0 dB is defined as 1pW of radiated sound energy. This is not the 0 dB of sound pressure level (20µPa) in 1m. The difference is about 11 dB.
                            In Boxsim the sound power response is identical to the frequency responnse on axis, if the speaker radiates the same amount of sound in every direction.
                            Boxsim ... wenn Lautsprechersimulation gelingen soll.

                            Kommentar

                            • mcl2k6
                              Registrierter Benutzer
                              • 26.11.2018
                              • 19

                              #44
                              Thanks UweG for clarifying even further!
                              Currently, I have something like the one attached to the post. Any comments on it?
                              Angehängte Dateien

                              Kommentar

                              • UweG
                                Registrierter Benutzer
                                • 29.07.2003
                                • 5683

                                #45
                                Not in this thread. This one is for the english version of Boxsim.
                                Please open a new thread and maybe attach the project file because frequency response is not the only interesting topic.
                                Boxsim ... wenn Lautsprechersimulation gelingen soll.

                                Kommentar

                                Lädt...
                                X