ich suche schon seit längerem ein vernünftige Stereo Ergänzung zu meinem schon etwas älterem Teufel Concept s an einem genauso altem Denon 1602.
Problem: Sound bei gutem dts/dolby Eingangssignal recht ordentlich, aber im konventionellem Stereobetrieb in der Mitte doch eher Blechern + der Bass teilweise nicht wirklich gleichmäßig Raum füllend.
Und dann habe ich durch Zufall in ebay 2 Standlautsprecher gefunden + im Anfall von Wahnsinn für 22,50 € quasi blind + ohne Gewähr ersteigert.
Also die Teile, aus blanker MDF-Platte, hatten wohl ca. 8 Jahre im Keller einer Mäusefamilie als Unterkunft gedient, Feuchtigkeit gesehen + alle Kalotten (?) also die Hauben in der Mitte der Chassis waren eingedrückt.
Ohne viel Hoffnung habe ich die Boxen an meinem guten alten Harmann-Kardon Verstärker in der Kellerbar angeschlossen, volle Funktion + wirklich guter Klang ?
Jetzt bin ich natürlich wild entschlossen die Dinger zu renovieren + für die gute Stube aufzupeppen, bin aber in diesem Bereich eher Laie und daher um jeden Tipp dankbar.
Mit einer Ausnahme: Schmeiß weg den Sch…!
Oder kennt jemand den kompletten Bausatz?
Ich bin gelernter Elektroniker und recht guter Hobbyschreiner, Vorrausetzungen passen,
aber keine Erfahrung und deswegen mein “Hilferuf“
Also:
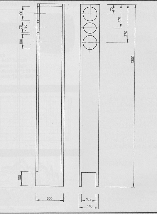
Gehäuse: 1300x140x200 MDF, sauber verleimt
Chassis: 2x2 Visaton W 100 S/8; 2 Visaton DT 94/8
Weiche: Kann ich leider nicht zuordnen, hat aber 4 Ausgänge. Ich habe die 4 W 100 S dran gepackt, alle Funktionieren, Tief, Mitteltief, Mittelhoch + Hoch vom Klang, also ich denke ne ältere 4-Wege Weiche?!?!
Was kann das Teil?
Siehe auch angehängte Foto`s.
Plan:
Ich würde die Lautsprecher gerne mit Eichestäbchenparkett (hab ich noch über) verkleiden und mit einen W 170 S im Bassreflexbetrieb ergänzend betreiben.
Macht das Sinn?
Kann ich die eingedrückten Kalotten mit einem Staubsauger oder ähnlich wieder ausbeulen?
Fragen über Fragen…
Gruß
Andreas

lang, lang ist`s her!
, Fotos folgen!

Kommentar