
Lohnt sich hier eine Akustikdecke/Deckenabsorber?
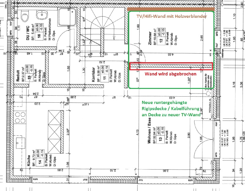
Wir haben vor unser Wohnzimmer zu vergrössern.
Es wird eine bestehende Wand (rot) abgebrochen um mehr Wohnfläche auf dieser Etage zu erreichen.
Nun sind in der (roten) alten TV Wand alle Kabel eingelegt. (TV,LAN,TT,LS Kabel inkl. Steigleitungen ins OG)
Um die Kabel an die neue TV-Wand (braun) zu bringen, haben wir uns überlegt dies über die Decke zu tun.
Die neue Decke soll ca. 50 bis max. 70mm runtergehängt werden. Holzlattung plus Rigips.
Frage nun an die Experten:
Ziel wäre es in der neuen (grün) TV/Hifi Ecke eine gute/bessere Raumakustik zu haben.
Gibt es Materialien die breitbandig absorbieren und einfach wie eine Rigipsplatte zu verarbeiten sind?
Der Wohnzimmercharakter soll aber beibehalten werden. Also eine geschlossene Decke, keine frei hängende Panels etc. Auch hier herrscht WAF.
Danke Euch für die Hilfe.
Gruss Toni
Kommentar