Ankündigung

Einklappen
Keine Ankündigung bisher.

Positionierung Deckenlautsprecher

Einklappen
X
 
  • Filter
  • Zeit
  • Anzeigen
Alles löschen
neue Beiträge
  • JoachimJOY
    Registrierter Benutzer
    • 28.04.2020
    • 2

    Positionierung Deckenlautsprecher

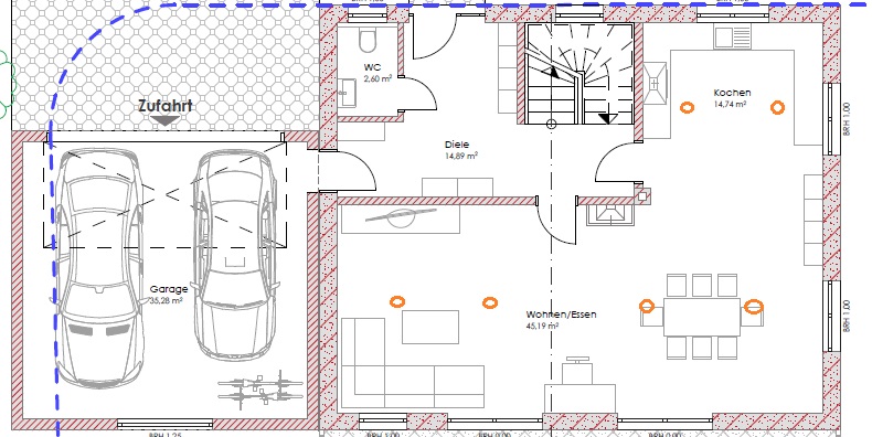
    Hallo zusammen,

    ich möchte in meinem Neubau gerne Visaton dl 18/2 Deckenlautsprecher verbauen.
    Nun bin ich mir sehr unsicher was die Positionierung dieser Deckenlautsprecher angeht.

    Anbei findet ihr die derzeitige Planung. Über jegliches Feedback wäre ich sehr dankbar.

    Viele Grüße
    Joachim
    Angehängte Dateien
  • boeserody
    Registrierter Benutzer
    • 09.05.2012
    • 833

    #2
    Vielleicht in der Küche um 90 Grad drehen. Mehr Abstand zum Herd.( Wasserdampf und Fettspritzer ).
    Esszimmer passt.
    Beim Wohnzimmer ist die Frage, welchen Zweck die LS erfüllen sollen. Hintergrundgeduddel ohne Anspruch, dann ist das ok. Für Musikgenuss oder TV Unterstützung eher nicht.
    Der Tag ist kurz und schnell ist nix getan

    Kommentar

    • JoachimJOY
      Registrierter Benutzer
      • 28.04.2020
      • 2

      #3
      Deckenlautsprecher

      Hallo,

      ich möchte gerne etwas Hintergrundmusik laufen lassen. @boeserody: Wenn ich die Deckenlautsprecher im Wohnzimmer über der Couch platziere könnte ich diese bei Bedarf wohl auch für TV nutzen oder?

      PS: Hochgenuss im Audio erwarte ich gar nicht. Es geht vielmehr darum, darüber Radiomusik und Kindermusik zimmerlautstark zu hören.

      Gruß Joachim

      Kommentar

      • boeserody
        Registrierter Benutzer
        • 09.05.2012
        • 833

        #4
        Alles gut.

        Beim TV hast du das Problem, das der Ton nicht aus dem Bild kommt. Dann lieber im Wohnzimmer 2 Lautsprecher für Stereo.

        Ansonsten ist das Ok.
        Der Tag ist kurz und schnell ist nix getan

        Kommentar

        • tabw
          Registrierter Benutzer
          • 27.05.2015
          • 245

          #5
          Du hast die Garage vergessen...

          Kommentar

          Lädt...
          X