Ankündigung

Einklappen
Keine Ankündigung bisher.

La Belle Heimkinosystem

Einklappen
X
 
  • Filter
  • Zeit
  • Anzeigen
Alles löschen
neue Beiträge
  • EricXh
    Registrierter Benutzer
    • 04.01.2003
    • 371

    #46
    @Visaton:

    Ich dachte ja nicht an Fullrange, aber das man halt so in die übliche Richtung 80Hz Trennfrequenz (die können alle Receiver) hinkommt.
    Wie - dafür seit Ihr die Spezialisten, ich kann leider nicht 5 Testgehäuse bauen und messen was sich wie damit verhält.
    Ich möchte nur (falls sich jemand aus meiner Umgebung für sowas interessiert) sagen können "nimm das, das ist gut und richtig".
    Hätte zB schon so jemand, aber ich kann dort keine 5x in Groß hinstellen und die kleinen mit 100Hz gefallen mir technisch nicht, auch möcht ich nicht 2 große, 1x Center und 2x Surround bauen, das ist mir zu kompliziert, ich möchte 5x das bauen (Gehäuse bauen lassen) und gut und vorallem klingts immer gleich.
    Ich bin einfach kein Fan bei "High-End Surround" von ungleichen Lautsprechern (und wenns auch nur die Gehäuseform - Stichwort Abstrahlung - ist).

    Denke, daß das sicher auch einige so sehen (Vorallem der Aspekt mit dem Nachbau).

    Schöne Grüße,
    EricXh

    P.S: Danke Chaomaniac, konnte mich noch an das laaaaaange Gehäuse erinnern, aber nicht mehr an die gemessenen Kurven von VISATON.

    Kommentar

    • Fosti
      Registrierter Benutzer
      • 18.01.2005
      • 3195

      #47
      Oder so:
      http://www.gattiweb.com/images/dynau...ovent_data.pdf

      Oooder so:
      http://hifi-selbstbau.de/index.php?o...cher&Itemid=75
      Ich stimme ansonsten dafür, deinen Nick in "Cato" zu ändern; derjenige, der im Senat immer mit "...im übrigen bin ich der Meinung, dass MEG gehört werden muss!" geschlossen hat . (copyright by mechanic)

      Kommentar

      • andi_m
        Registrierter Benutzer
        • 26.09.2004
        • 1435

        #48
        Hallo EricXh

        ch dachte ja nicht an Fullrange, aber das man halt so in die übliche Richtung 80Hz Trennfrequenz (die können alle Receiver) hinkommt.
        Das kommt doch hin.
        Der Receiver trennt bei 80 Hz mit minus 3dB und die CR liegen etwa beim selben Abfall.
        Das ist ja fast THX-Norm.

        Mir gefällt das Set wenn ich nicht schon zu frieden wär.....

        Gruss Andi_m

        PS: Der Hochpass Kondensator muss ebenfalls voehanden sein um die Phase zu den Mains anzupassen.
        Diese haben 18 dB zum MT. Der Amp hat 12 dB plus 6 dB in der Weiche.
        Dann passt auch 2 und 3 Wege im Mischmasch.
        Spannungsabfall ist kein Sondermüll

        Wenn du nicht helfen kannst dann störe
        dabei sein ist alles
        (Zitat: Jürgen von der Lippe)

        Kommentar

        • EricXh
          Registrierter Benutzer
          • 04.01.2003
          • 371

          #49
          @Andi_m

          Stimmt, die blöde Mischkulanz 12/24dB bei Surround Receivern hatte ich erfolgreich verdrängt.

          Somit würde sich das bei 80Hz ja wirklich gut treffen, vorausgesetzt das der Abfall 6dB/Oktave bei den CR's nach unten wären...
          Von 100 zu 50Hz sinds aber 28dB pro Oktave laut Meßschrieb, also paßt das leider gar nicht.

          Naja, wenn Zeit ist mal etwas simulieren.


          @Fosti

          Variovent hab ich mal beim BG20 in einem zu kleinen Gehäuse probiert (als Sat), hab die Überhöhung damit aber nur zum Teil wegbekommen.
          Evtl. in Baßreflex bauen und den stark bedämpfen.

          Leider so wenig Zeit und soviel Projekte... :-(
          Zuletzt geändert von EricXh; 06.04.2013, 10:21. Grund: 12/18dB auf 12/24dB korrigiert

          Kommentar

          • andi_m
            Registrierter Benutzer
            • 26.09.2004
            • 1435

            #50
            Nach THX sollte der Sat mit 12 dB abfallen. Mit Amp also 24 dB.
            Wenn jetzt 36 dB oder etwas mehr abfallen ist es eine Glaubensfrage, ob man diesen unterschied wirklich hört.

            Gruss Andi_m
            Spannungsabfall ist kein Sondermüll

            Wenn du nicht helfen kannst dann störe
            dabei sein ist alles
            (Zitat: Jürgen von der Lippe)

            Kommentar

            • Grashopper
              Registrierter Benutzer
              • 22.01.2005
              • 574

              #51
              Hmmm.....wieviel Center ist eigentlich nötig ?

              Reicht die kompakte Bauform in Form der Rears oder muss der große Rundumschlag sein ?

              Kommentar

              • yoogie
                Registrierter Benutzer
                • 16.03.2009
                • 5918

                #52
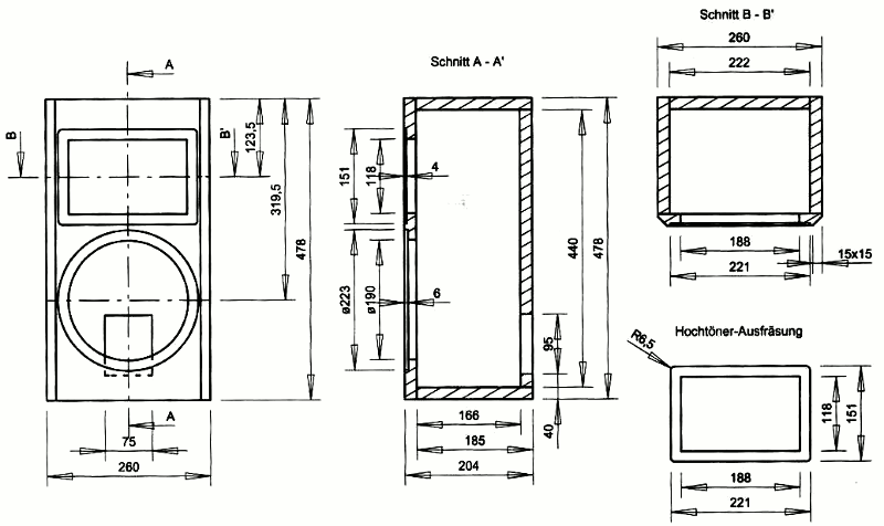
                Werter Admin,

                Beim LA BELLE CR auf der Homepage wird leider die Gehäusezeichnung nicht geladen. Die Hobby Hifi, habe ich mir zwar gekauft, aber dann verliehen
                Viele Grüße aus dem Bergischen Land
                Jörg

                Ab jetzt auch wieder Yamaha, ohne Kickstarter und breitem Lenker

                Kommentar

                • walwal
                  Registrierter Benutzer
                  • 08.01.2003
                  • 28733

                  #53
                  Zitat von Grashopper Beitrag anzeigen
                  Hmmm.....wieviel Center ist eigentlich nötig ?....
                  Der Center ist der wichtigste und am meisten beanspruchte LS.
                  „Audiophile verwenden ihre Geräte nicht, um Ihre Musik zu hören. Audiophile verwenden Ihre Musik, um ihre Geräte zu hören.“

                  Alan Parsons

                  Kommentar

                  • yoogie
                    Registrierter Benutzer
                    • 16.03.2009
                    • 5918

                    #54
                    Meine Leinwand ist zur Zeit 2 m breit, selbst wenn ich auf 2,5 m gehe, sind 3 x La Belle Center nebeneinander vorne ziemlich mächtig.
                    Raumbreite ist 3,4 m.
                    Daher überlege ich nämlich auch, ob es kleiner geht.
                    Kurioserweise überlege ich La Belle Center rechts und links (Fullrange wegen Stereo hören) und aus Platzgründen als Center "nur" den CR. Ja, hört sich widersinnig an, das könnte ein Besuch in Haan klären. Von der Höhe komme ich dann nämlich hervorragend (bzw, eben genau das nicht) unter die Leinwand und habe Platz zu den Seitenwänden.

                    Bei Grashopper war ich ja zu Hause, seine Platznot in der Front kenne ich also auch.

                    Zitat von walwal Beitrag anzeigen
                    Der Center ist der wichtigste und am meisten beanspruchte LS.
                    Sagt der, der früher für Phantomcenter plädiert hat
                    Viele Grüße aus dem Bergischen Land
                    Jörg

                    Ab jetzt auch wieder Yamaha, ohne Kickstarter und breitem Lenker

                    Kommentar

                    • walwal
                      Registrierter Benutzer
                      • 08.01.2003
                      • 28733

                      #55
                      Genau, weil der Phantomcenter gar nicht belastet wird.
                      Und ich habe nur dafür plädiert, wenn man keinen Platz hat oder nicht den richtigen Center nehmen müsste.
                      Auch Greise haben das Recht, zu lernen.
                      „Audiophile verwenden ihre Geräte nicht, um Ihre Musik zu hören. Audiophile verwenden Ihre Musik, um ihre Geräte zu hören.“

                      Alan Parsons

                      Kommentar

                      • yoogie
                        Registrierter Benutzer
                        • 16.03.2009
                        • 5918

                        #56
                        Man könnte auch ketzerisch behaupten, mit 5 x C R ist der Wirkungsgrad höher, alles kleiner und reichlich Subs aus dem TIW200xs machen. Gibt automatisch teilaktive Belles. Aber das mache ich nicht, also sowas behaupten.

                        Dewegen würde ich ja gerne mal 2 C R Gehäuse bauen und meine Belles da rein schrauben
                        Viele Grüße aus dem Bergischen Land
                        Jörg

                        Ab jetzt auch wieder Yamaha, ohne Kickstarter und breitem Lenker

                        Kommentar

                        • walwal
                          Registrierter Benutzer
                          • 08.01.2003
                          • 28733

                          #57
                          Das könnte man machen, wenn die Belle CR nicht so steil abfallen würde. Mit dem 18 dB Tiefpass passt es nicht zusammen. Wenn der Sub steiler getrennt würde....

                          Simulatius.....geht doch mit kleiner Restwelligkeit.

                          SW auf 100 Hz (18 dB/Okt) + x dB Pegel. Die Belle CR hat einen Hochpass 8er Ordnung - wow. Das macht schöne Laufzeitunterschiede, ich weiß nicht....
                          Angehängte Dateien
                          Zuletzt geändert von walwal; 08.04.2013, 15:26.
                          „Audiophile verwenden ihre Geräte nicht, um Ihre Musik zu hören. Audiophile verwenden Ihre Musik, um ihre Geräte zu hören.“

                          Alan Parsons

                          Kommentar

                          • Chaomaniac
                            Registrierter Benutzer
                            • 01.08.2008
                            • 2916

                            #58
                            Zitat von yoogie Beitrag anzeigen
                            Werter Admin,

                            Beim LA BELLE CR auf der Homepage wird leider die Gehäusezeichnung nicht geladen. Die Hobby Hifi, habe ich mir zwar gekauft, aber dann verliehen
                            Da haddu:
                            Klicke auf die Grafik für eine vergrößerte Ansicht

Name: Belle-CR-TZ.gif
Ansichten: 1
Größe: 60,4 KB
ID: 620990
                            Gaaaanz viel Zeug zu verkaufen...

                            Kommentar

                            • yoogie
                              Registrierter Benutzer
                              • 16.03.2009
                              • 5918

                              #59
                              Merci!
                              Viele Grüße aus dem Bergischen Land
                              Jörg

                              Ab jetzt auch wieder Yamaha, ohne Kickstarter und breitem Lenker

                              Kommentar

                              • VISATON
                                Administrator
                                • 30.09.2000
                                • 4536

                                #60
                                Werter Admin,

                                Beim LA BELLE CR auf der Homepage wird leider die Gehäusezeichnung nicht geladen. Die Hobby Hifi, habe ich mir zwar gekauft, aber dann verliehen
                                Wird heute noch aktualisiert. Danke für den Tipp.

                                @Chaomaniac: Danke für's Aushelfen.
                                Admin

                                Kommentar

                                Lädt...
                                X