Ankündigung

Einklappen
Keine Ankündigung bisher.

Wohnung einrichten

Einklappen
X
 
  • Filter
  • Zeit
  • Anzeigen
Alles löschen
neue Beiträge
  • atbfrog
    Registrierter Benutzer
    • 14.07.2010
    • 95

    Wohnung einrichten

    Hallo, ich ziehe in 2 Wochen in eine neue Wohnung ein. Da will ich natürlich die LS (Concordes) auch richtig aufstellen und den Raum etwas optimieren.
    Da ich aber erst anfange mit Einrichten wollte ich euch um Rat bitten.


    Geplant habe ich an den Spiegelpunkten Absorber aus Steinwolle (inkl. an der Zwischendecke) + Teppich vor dem Hörplatz.
    An der Rückwand ein Bücherregal, welches ich ev. noch mit kleinen Skylines ausschmücken werde.
    Zudem habe ich mir überlegt aus Postern Deflektoren zu machen. Kurz gesagt eine gewölbte Sperrholzplatte und darauf ein Poster.

    Das grösste Problem ist wie immer der Bass... ich kann nicht Messen und will mich da eigentlich auch nicht reinarbeiten..
    Als ich mich vor etwa 2 Jahren in das Thema Raumakustik eingelesen habe, kam ich zum Schluss, dass Eckabsorber aus fester Steinwolle mit einer Folie drauf im Bass schon was bringen sollten.
    Jedoch lese ich hier in den aktuellen Diskussionen, dass dies kaum mehr empfohlen wird, nur noch Plattenresonatoren/-absorber. (warum?) Von denen hab ich kaum ne Ahnung.
    Wäre es möglich Plattenresos anhand von Sinustönen zu "Stimmen", oder muss man messen?


    Wie gesagt wäre ich interessiert an euren Anregungen.

    - LS Aufstellung: Welche Abstände würdet ihr wählen?? (LS – LS / LS –Seitenwand / LS – Rückwand)

    - Was für Akustikmassnahmen empfehlt ihr?

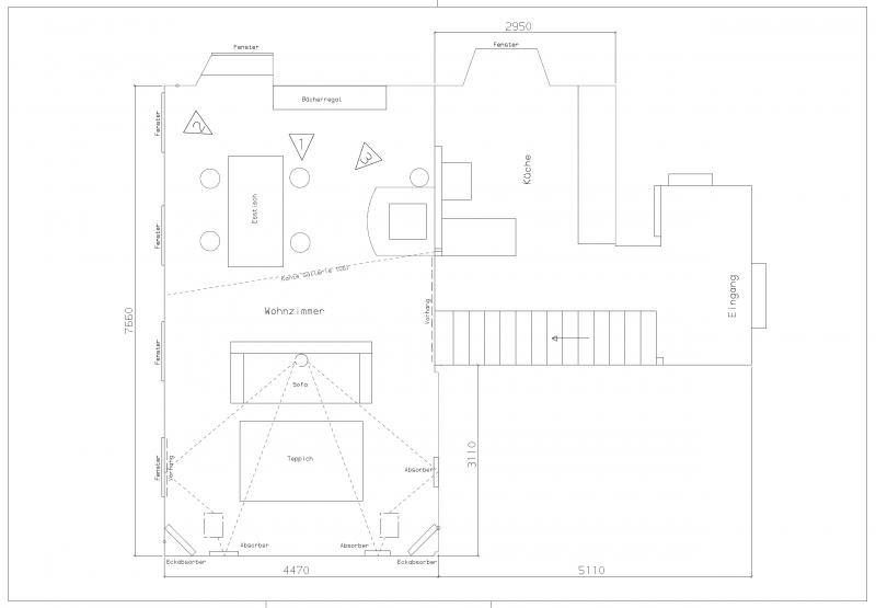
    Im Anhang habe ich eine Zeichnung vom Grundriss + die Fensterfront, damit man die Höhe sieht.
    Zudem 3 Fotos (auf dem Grundriss sieht man von welcher Position fotografiert wurde)
    Angehängte Dateien
  • walwal
    Registrierter Benutzer
    • 08.01.2003
    • 28843

    #2
    Zitat von atbfrog Beitrag anzeigen
    .... kam ich zum Schluss, dass Eckabsorber aus fester Steinwolle mit einer Folie drauf im Bass schon was bringen sollten.
    Jedoch lese ich hier in den aktuellen Diskussionen, dass dies kaum mehr empfohlen wird, nur noch Plattenresonatoren/-absorber. (warum?) Von denen hab ich kaum ne Ahnung.
    Wäre es möglich Plattenresos anhand von Sinustönen zu "Stimmen", oder muss man messen?....)
    Meine Steinwolle + Folie (7 cm dick) in den Ecken wirken ab 100 Hz.
    Tiefer runter geht es mit Plattenabsorbern (Metallplatte) oder viel dickerer Steinwolle.

    Die Plattenabsorber müssen immer getestet und abgestimmt werden, das geht mit Sinustönen gut.

    Aber: Du hast eine Zwischendecke über den LS. Die ist ideal als Absorber, wenn du Paneele mit Steinwolle dahinter montierst, sie müssen aber schwingfähig sein. So habe ich das gemacht. Oder du nimmst käufliche Absorber.
    „Audiophile verwenden ihre Geräte nicht, um Ihre Musik zu hören. Audiophile verwenden Ihre Musik, um ihre Geräte zu hören.“

    Alan Parsons

    Kommentar

    • markus7
      Gesperrt
      • 21.12.2010
      • 1828

      #3
      Nette Wohnung. Die Aufstellung wuerde ich auch so waehlen. Ohne Messungen kann man aber ansonsten nicht viel wirklich Sinnvolles weiter beitragen.

      Kommentar

      • atbfrog
        Registrierter Benutzer
        • 14.07.2010
        • 95

        #4
        Danke

        Gibt es etwas zu der Aufstellung zu sagen? Wie weit würded ihr die Concordes auseinander stellen?

        walwal,das mit den Absorbern in die Zwischendecke werde ich voraussichtlich machen.
        aber wie hast du das gemeint mit "schwingfähig"?
        Kann ich nicht eifach Holzrahmen machen, ca 5cm Steinwolle rein Stoff drüber und sie mit jeweils 4 Schrauben zwischen den Balken befestigen?

        oder müsste ich eine Platte drauf machen? wenn ja, was für Material und wie macht man es schwingfähig?

        Kommentar

        • markus7
          Gesperrt
          • 21.12.2010
          • 1828

          #5
          ^ Bitte nichts Schwingendes bauen, wenn Du kein Messequipment hast. Das kann ganz boese nach hinten losgehen.

          Grundsaetzlich solltest Du die Nachhallzeit breitbandig verringern. Das heisst mindestens 10cm Mineralwolle mit 10cm Wand-/Deckenabstand. Flauschiger Teppich auf den Boden.

          Ohne Messen ist es in den meisten Raeumen unmoeglich gute Basswiedergabe zu erreichen. Das unsystematische Einbringen von massig Bassabsorbern wird zwar die Nachhallzeit verringern, der Frequenzgang ist danach aber meist immer noch unter aller S...
          Wenn man nicht selber Hand anlegen und messen will, dann wuerde ich so etwas wie Audyssey XT32 oder Anti-Mode empfehlen, um den Frequenzgang geradezubiegen.

          Das Stereodreieck so gross wie moeglich, so klein wie noetig. Im Allgemeinen wird versucht den zeitlichen Abstand zwischen Direktschall und ersten Reflexionen bzw. das Pegel-Verhaeltnis zwischen Direktschall und Nachhall zu optimieren.

          Kommentar

          • walwal
            Registrierter Benutzer
            • 08.01.2003
            • 28843

            #6
            Zitat von atbfrog Beitrag anzeigen
            Danke

            Gibt es etwas zu der Aufstellung zu sagen? Wie weit würded ihr die Concordes auseinander stellen?

            walwal,das mit den Absorbern in die Zwischendecke werde ich voraussichtlich machen.
            aber wie hast du das gemeint mit "schwingfähig"?
            Kann ich nicht eifach Holzrahmen machen, ca 5cm Steinwolle rein Stoff drüber und sie mit jeweils 4 Schrauben zwischen den Balken befestigen?

            oder müsste ich eine Platte drauf machen? wenn ja, was für Material und wie macht man es schwingfähig?
            Probieren mit der Aufstellung, im Prinzip ist alles ok. Absorber hinter den Boxen sind immer vorteilhaft.

            Schwingfähig: Ist erst mal vom gewünschten Design abhängig. Bei mir habe ich zwischen die Balken Paneele auf schwingfähigen Leisten (2 m ) verlegt, die mittig von einem viscoelastischen Gummi gezogen werden. Die Paneele haben etwa 1 mm Spaltöffnung und dahinter 5 cm Steinwolle. Mehr ist besser.

            Aber es gehen auch Akustikplatten, die gibt es in unendlicher Auswahl, auch in Holz.

            http://www.trikustik.at/produkte.html

            Breitbandige Wirkung ist sinnvoll, meine Decke wirkt im Bereich 50-130 Hz.
            Im Raum sind noch diverse Absorber. Die NHZ ist recht gleichmäßig, der Bass wunderbar trocken. Für mich perfekt, auch wenn Messfetischisten und Theoretiker die NHZ für zu hoch finden (T 30). Der Raum hat allerdings 160 Kubimeter, ist also nicht "klein".

            Vertraue deinen Ohren. Mit einem DSP zur Linderung der Raummoden wird es noch besser. Das geht auch ohne Messung, ist aber zeitintensiver. zB. die DSP-Box der Hifi-Akademie zwischen VV und Endstufe schalten und Sinustöne über CD wiedergeben. Da wird einiges viel zu laut sein. Dann stellst du mit Laptop am DSP diese Frequenzen leiser und hörst es an. Mit der Absenkung und Güte (Breite) spielen und es wird garantiert besser. Aber zieh erst mal um und höre. Wenn dich nichts stört - ok.

            Bei mir trieben mich die 58 und 100 Hz zur verzweiflung, nach Messung und DSP kann ich jetzt CDs hören, die vorher grausam waren, weil die gum 58 Hz (+-) bassbetont waren.

            Trotz Concorde geschlossen!
            Kann also sein, dass du auch bei CB landest.
            Angehängte Dateien
            Zuletzt geändert von walwal; 29.08.2013, 13:13.
            „Audiophile verwenden ihre Geräte nicht, um Ihre Musik zu hören. Audiophile verwenden Ihre Musik, um ihre Geräte zu hören.“

            Alan Parsons

            Kommentar

            • markus7
              Gesperrt
              • 21.12.2010
              • 1828

              #7
              ^ Gibt's Messungen, die die Wirkung dieser Konstruktion zeigen?

              Kommentar

              • frogger
                Registrierter Benutzer
                • 16.11.2003
                • 724

                #8
                Hallo

                Das grösste Problem ist wie immer der Bass... ich kann nicht Messen und will mich da eigentlich auch nicht reinarbeiten..
                Als ich mich vor etwa 2 Jahren in das Thema Raumakustik eingelesen habe, kam ich zum Schluss, dass Eckabsorber aus fester Steinwolle mit einer Folie drauf im Bass schon was bringen sollten.]
                Bei mir hab ich in allen vier Ecken raumhoch 12cm Mineralwolle (Sonorock) gepackt. Das ganze in dünne Malerfolie eingepackt damit nichts rieselt.

                Damit kann man nichts verkehrt machen. Eine günstigere verbesserung der Raumakustik gibt es nicht. Die kunst dabei ist es das ganze so zu gestalten das auch gut aussieht. Zumindest wenn die Frau auch was zu sagen hat .

                Alternativ kann man sich für die Ecken auch diese Würfel von Basotec kaufen gibt es soweit ich weiss in schwarz, weiss und grau. Braucht man nur hinstellen und gut.

                Unten ein Bild wie es momentan bei mir aussieht. In der mitte hängt noch ein mit Stoff bezogener Absorber in 1,40x1,40m mit 12cm Sonorock und 12cm Wandabstand.

                An den seitlichen Spiegelflächen auch noch mal jeweils ein Absorber mit 60x100cm auch 12cm dick und 12cm Abstand und noch mal 3x60x100cm unter der Decke. Hier allerdings nur 8cm dick und 5cm Deckenabstand. Hab leider nur 2.10m Deckenhöhe.

                Das ganze klingt schon ganz ordentlich. Allerdings muss ich dazu sagen das der Raum komplett aus Rigibs ist der Boden eine Holzkonstruktion mit Tritschalldämmplatten und über der Decke auch noch mal 20cm Mineralwolle liegen.
                Unter 100hz war die Nachhallzeit schon ein Traum ohne das was im Raum drin stand.

                Wie sieht denn bei dir die Wandbeschaffenheit aus ? Alles gemauert ?
                Angehängte Dateien
                Gruß Udo...

                Classic 200 Selection TIW300 Downfire BM12s

                Kommentar

                • walwal
                  Registrierter Benutzer
                  • 08.01.2003
                  • 28843

                  #9
                  Am schicksten ist sicher, eine Holzlattenkonstruktion zum Raum passend mit etwa 20% offener Fläche. Nur als Anregung. Könnte auch in der Draufsicht überlappend sein, also in 2 Ebenen (von oben).
                  „Audiophile verwenden ihre Geräte nicht, um Ihre Musik zu hören. Audiophile verwenden Ihre Musik, um ihre Geräte zu hören.“

                  Alan Parsons

                  Kommentar

                  • atbfrog
                    Registrierter Benutzer
                    • 14.07.2010
                    • 95

                    #10
                    frogger:
                    Danke für die Anregungen. Werds vorerst auch ähnlich machen, einige Absorber aus Mineralwolle.
                    Die Wände sind alle gemauert.. :/ mal sehn

                    walwal:
                    Optisch würde mich in weissen Stoff gepackte Steinwolle in der Zwischendecke nicht stören. Akustisch sollte dies doch ähnlich viel bringen?

                    Kommentar

                    • walwal
                      Registrierter Benutzer
                      • 08.01.2003
                      • 28843

                      #11
                      Die Steinwolle ( "pur" auch mit Stoff) absorbiert nur Mitten und Höhen, so dass es zu dumpf klingen kann. Zumindest teilweise muss auch Tiefton absorbiert werden. Platten ohne Lochung oder mit geringem Anteil Loch sind geeigneter. Zumindest teilweise in dicke Folie einpacken und 10 cm oder mehr. Oder die Deckenplatten (meist weiß) aus dichter Steinwolle von OWA oder Rockfon, Holz von Trikustik. Da wird das Design wichtig sein, vermute ich.
                      „Audiophile verwenden ihre Geräte nicht, um Ihre Musik zu hören. Audiophile verwenden Ihre Musik, um ihre Geräte zu hören.“

                      Alan Parsons

                      Kommentar

                      • markus7
                        Gesperrt
                        • 21.12.2010
                        • 1828

                        #12
                        ^ Das ist so nicht richtig. Man muss sich einmal ueberlegen, was man erreichen will, wo sich der Absorber befindet und wie der Schall auftrifft. Hier 'mal 10cm mit 10cm Abstand und 45° Einfallswinkel.



                        Absorptionskoeffizient von >0.8 ab 200Hz.

                        Platten ohne Lochung heisst Reflexion. Weshalb sollte man absichtlich die Deckenreflexion erhalten wollen??
                        Angehängte Dateien

                        Kommentar

                        • walwal
                          Registrierter Benutzer
                          • 08.01.2003
                          • 28843

                          #13
                          Zitat von atbfrog Beitrag anzeigen
                          frogger:
                          ...
                          walwal:
                          Optisch würde mich in weissen Stoff gepackte Steinwolle in der Zwischendecke nicht stören. Akustisch sollte dies doch ähnlich viel bringen?
                          Nachfrage: wie dick?
                          Wenn weiß ok ist, würde ich Deckenplatten mit breitbandiger Wikung nehmen. Rockwool bietet diese an. Dahinter Steinwolle.

                          http://produkte.rockfon.de/
                          „Audiophile verwenden ihre Geräte nicht, um Ihre Musik zu hören. Audiophile verwenden Ihre Musik, um ihre Geräte zu hören.“

                          Alan Parsons

                          Kommentar

                          • atbfrog
                            Registrierter Benutzer
                            • 14.07.2010
                            • 95

                            #14
                            Ich hätte höchstens 10cm dicke genommen.
                            Hab nicht gedacht, dass Lochplatten Bass absorbieren können.

                            Werde den Rockfon Menschen mal eine Anfrage schicken. das kommt bestimmt teuer, da sie die platten auf meine spez Breite anfertigen müssen?

                            Kommentar

                            • walwal
                              Registrierter Benutzer
                              • 08.01.2003
                              • 28843

                              #15
                              Ich hatte mal Rockfon angefragt, 40 Euro/m². Ob sie Zuschnitt machen, weiß ich nicht.

                              Deine Decke ist insofern günstig, da sie auch als Diffusor wirkt, wenn die Querbalken nicht verdeckt werden. Ich hatte Versuche bei mir gemacht mit Absorbern aus Steinwolle, einen Vorteil konnte ich nicht feststellen. Vieleicht, weil sich das Gehör (so schreibt Toole) an die räumlichen Eigenschaften anpasst, da stören Reflektionen nicht so stark. Ich finde es viel schlimmer, wenn die NHZeit im Bass zugroß ist und alles im Bassmulm und Moden ersäuft. Deswegen auf alle Fälle auch Bass absorbieren. Die Decke bietet sich mit der großen Fläche geradezu an. Nochmal: Nur Steinwolle an der Decke und 10 cm Stärke absorbiert im Bass zu wenig.
                              Mit einem geprüften Produkt wird es teurer, aber auf die Hauskosten gerechnet, interessiert das nicht. Das Sonorock ist sehr feinpoig und siehr schick aus. Ohne Fugen noch besser - wenn das geht. Oder du nimmst ähnlich wirksame Platten und kaschierst sie mit dem weißem Stoff. Zum Beispiel auf einem Spannrahmen mit Querstreben.

                              Ziehe erst mal ein und höre, wie es klingt, dann optimiere.
                              Zuletzt geändert von walwal; 02.09.2013, 09:35.
                              „Audiophile verwenden ihre Geräte nicht, um Ihre Musik zu hören. Audiophile verwenden Ihre Musik, um ihre Geräte zu hören.“

                              Alan Parsons

                              Kommentar

                              Lädt...
                              X